Geberit ProPlanner softver za planiranje POUZDANO PLANIRANJE UZ GEBERIT
Geberit ProPlanner softver za planiranje je sofisticirani alat.
Geberit ProPlanner je softver osmišljen tako da odgovara na potrebe instalatera i kompanija koje se bave sanitarnom tehnikom i samostalno planiraju projekte srednjeg i velikog obima.
Moduli za planiranje pokrivaju čitavu sanitarnu tehniku – od vode za piće, odvodnjavanja i instalacionih sistema (Geberit Duofix / Geberit GIS) pa sve do sistema sifonskog odvodnjavanja krovova (Geberit Pluvia).
Moduli za projektovanje
Instalacioni sistemi
Brzo, jednostavno i efikasno planiranje instalacionih sistema:
- Planiranje instalacionih sistema
- Geberit Duofix i Geberit GIS paleta proizvoda
- Planiranje pomoću opcije brzog unosa podataka
- Brzo, jednostavno i efikasno planiranje instalacionih sistema
- Funkcija izvoza za detaljno planiranje 3D modula
- CAD interfejs za izvoz (Autodesk® RealDWG®)
- Najnovija regulativa i Geberit proizvodi
- Kalkulacija u skladu sa Geberit direktivama i regulativama
- Automatski generisana lista materijala, delova, ponuda i specifikacija
- Automatski generisani crteži osnove, preseka i instalacija

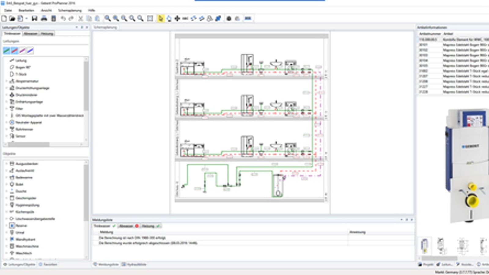
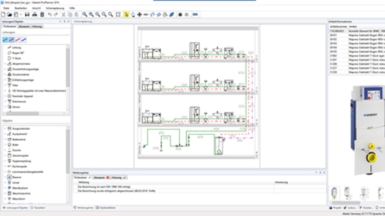
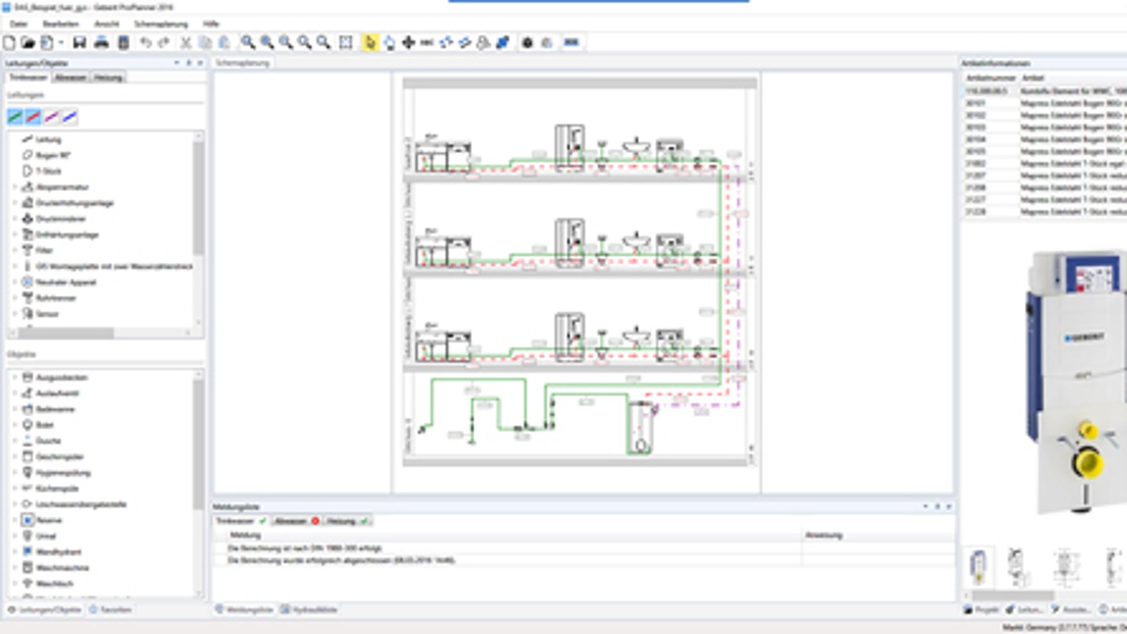
ŠEMATSKO PLANIRANJE
Detaljno šematsko planiranje cevnih sistema:
- Planiranje sistema za vodu za piće i odvodnjavanje
- Geberit Mepla, Geberit PushFit, Geberit Mapress nerđajući čelik, Geberit Mapress bakar, Geberit PE, Geberit Silent-PP, Geberit Silent-db20 i Geberit Silent-Pro paleta proizvoda
- Šematsko planiranje
- Detaljni crteži za planiranje cevnih sistema
- CAD interfejs za izvoz (Autodesk® RealDWG®)
- Najnovija regulativa, standardi i Geberit proizvodi
- Kalkulacija u skladu sa standardima konkretnih zemalja
- Automatski generisana lista materijala, delova, hidraulike i lista ponude
- Automatski generisani šematski prikaz u crtežima

Detaljno 3D planiranje
Sveobuhvatno i detaljno planiranje sanitarnih jedinica:
- Planiranje instalacija, sistema za vodu za piće i odvodnjavanje
- Geberit Duofix, Geberit GIS, Geberit Mepla, Geberit PushFit, Geberit Mapress nerđajući čelik, Geberit Mapress bakar, Geberit PE, Geberit Silent-PP, Geberit Silent-db20 i Geberit Silent-Pro paleta proizvoda
- Planiranje osnove, preseka i 3D
- Sveobuhvatno i detaljno planiranje sanitarnih jedinica
- CAD interfejs za uvoz i izvoz (Autodesk® RealDWG®)
- Direktno planiranje na osnovu CAD planova
- Najnovija regulativa, standardi i Geberit proizvodi
- Kalkulacija u skladu sa Geberit direktivama i regulativama
- Automatski generisana lista materijala, delova, ponuda i specifikacija
- Automatski generisani crteži osnove, preseka, 3D i instalacija

Krovna drenaža
Optimalno hidrauličko, ekonomično i pouzdano planiranje i određivanje dimenzija:
- Planiranje Geberit Pluvia sistema za sifonsko odvodnjavanje krovova
- Geberit PE, Geberit Silent-db20 i Geberit Pluvia paleta proizvoda
- Izometričko planiranje
- Optimalno hidrauličko, ekonomično i pouzdano planiranje dimenzija
- CAD interfejs za uvoz i izvoz (Autodesk® RealDWG®)
- Kalkulacija veličine krova preko CAD planova
- Najnovija regulativa, standardi i Geberit proizvodi
- Kalkulacija u skladu sa standardima konkretnih zemalja ili Geberit regulativama
- Automatski generisana lista materijala, hidraulike i ponuda
- Automatski generisani izometrički crteži

Prefabrikacija otpadnih voda
Planiranje sistema za odvodnjavanje sa spojnim elementima i detaljima:
- Planiranje sistema za odvodnjavanje
- Geberit PE i Geberit Silent-db20 paleta proizvoda
- Planiranje osnove, preseka i 3D
- Planiranje sistema za odvodnjavanje sa spojnim elementima i detaljima
- CAD interfejs za uvoz i izvoz (Autodesk® RealDWG®)
- Direktno planiranje na osnovu CAD planova
- Najnovija regulativa i Geberit proizvodi integrisani
- Kalkulacija zasnovana na švajcarskim standardima za otpadne vode
- Automatski generisana lista materijala, delova, ponude i specifikacija
- Automatski generisani crteži osnove, preseka i 3D instalacija

Zahtevi
Pre preuzimanja sftvera za planiranje, proverite neophodne zahteve,
| Minimum | Preporučeno | |
|---|---|---|
| Operativni sistem | Windows 8.1 Windows 10 (od 1809) | Windows 10 (od 1809) |
| Procesor | Intel ili AMD procesor sa više jezgra | Intel ili AMD procesor sa više jezgra |
| RAM | 2 GB | 4 GB |
| Memorija hard diska | 3 GB slobodno | 6 GB slobodno |
| Grafička kartica | 64 MB, DirectX 9 | 256 MB, DirectX 9 |
| Ekran | 1280 piksela horizontalna rezolucija , 900 piksela vertikalna rezolucija | 1920 piksela horizontalna rezolucija / 1080 piksela vertikalna rezolucija |
| 96 dpi (rezolucija ekrana) preporučeno | ||
| Online uslovi | Potreban pristup internetu Važeća mejl adresa | |
| Sistemske komponente | Uključeno u ponudu i automatski instalirano: - Microsoft .NET 4.7 - Microsoft DirectX 9 |
PREUZIMANJE SOFTVERA I LICENCE
licence za softver
Nakon što preuzmete Geberit ProPlanner softver i registrujete se prvi put, dobićete ključ sa licencom koja će vam omogućiti da otključate modul za instalacione sisteme i koristite ga besplatno.
Šematski prikaz za cevne sisteme, detaljno 3D planiranje, odvodnjavanje krova i moduli za otpadne vode moraju se kupiti. Nakon treninga za korišćenje softvera, Geberit će svim učesnicima omogućiti besplatno korišćenje softvera za planiranje. Za dodatne informacije i licence, kontaktirajte svoje lokalno Geberit predstavništvo ili konsultanta iz oblasti prodaje.
Sa kompanijskom licencom možete preuzeti i aktivirati Geberit ProPlanner u svojoj firmi koliko god puta želite. Softver je besplatan za sve praktikante i obrazovne institucije.
PREUZIMANJE SOFTVERA
Preuzmite najnoviju verziju Geberit ProPlanner softvera za planiranje.
TRENING ZA KORIŠĆENJE SOFTVERA
U cilju što efikasnijeg korišćenja Geberit ProPlanner modula, organizujemo specijalne seminare kao i individualne treninge za korišćenje softvera na vašoj lokaciji i u vašoj regiji.
Linkovi
Geberit ProPlanner preuzimanje: